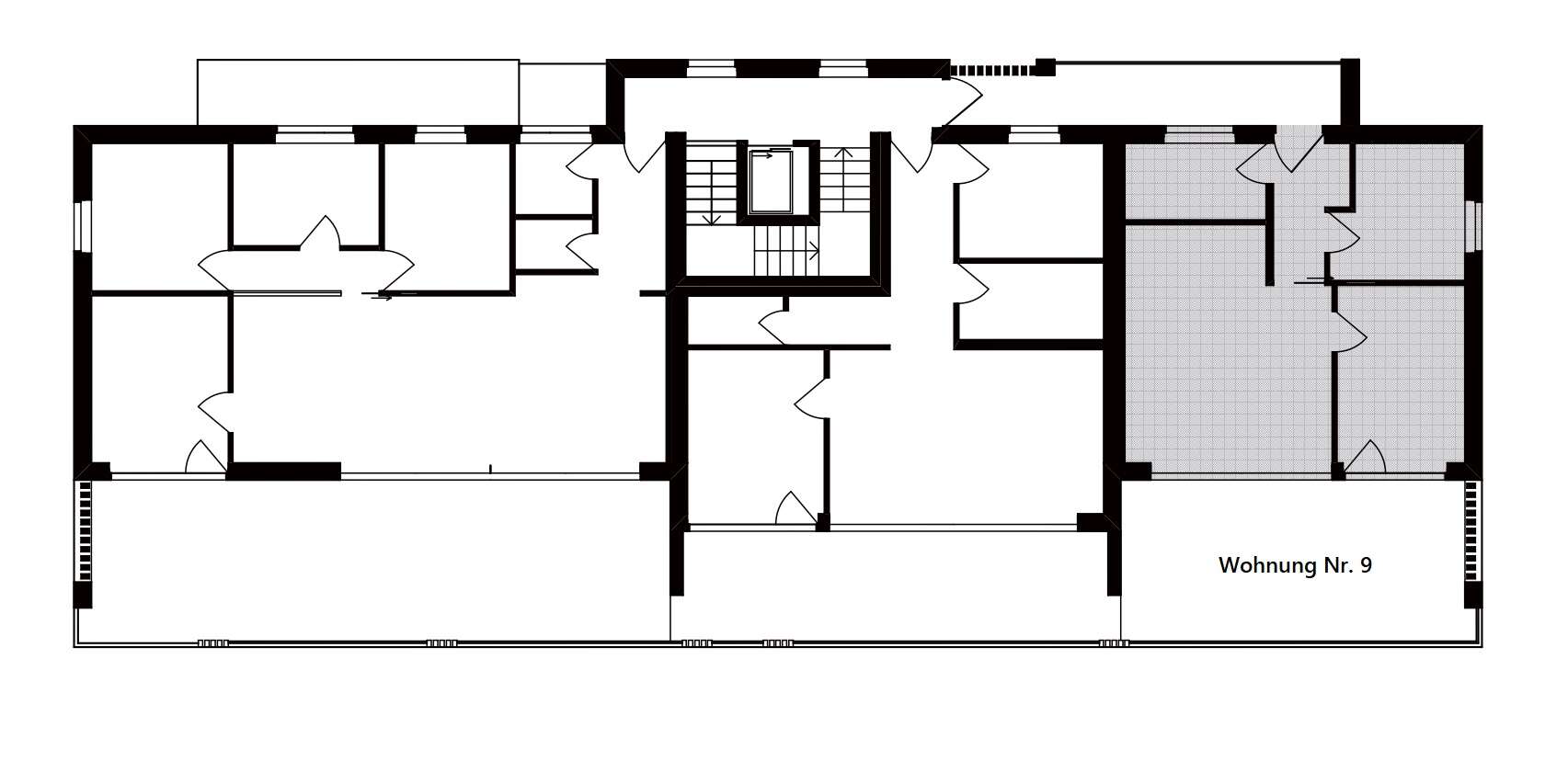
Neubau Wohnanlage Maria - Wohnung Nr. 9
Wohnung Nr. 9: Die neu zu errichtende Wohnanlage MARIA befindet sich direkt angrenzend an die Wohnanlage LISA in Prad am Stilfserjoch, in einer sehr ruhigen Wohngegend.
Die Wohneinheiten werden in hochwertiger Bauausführung errichtet:
- Verwendung hochwertiger Silikatfarben
- Bodentiefe Fensterelemente mit 3-fach Wärme- und Schallschutzverglasung
- Elektrisch betriebener Sonnen- Sichtschutz
- Hochwertige Naturholzböden für die Wohnbereiche und Steinzeugfliesen für die Bäder
- Schließanlage: Einschlüsselsystem für alle Zugänge von Garage bis zur Wohnungstür im Haus
Wir bemühen uns, Ihnen von Anfang an einen Rundum-Service zu bieten, damit Sie sich bei uns gut betreut und aufgehoben fühlen. Deshalb ist es unser Anliegen, Sie Schritt für Schritt beim Erwerb Ihrer Immobilie zu begleiten und auch darüber hinaus. Ihre Zufriedenheit ist unsere Herzensangelegenheit.
Die Wohneinheiten werden in hochwertiger Bauausführung errichtet:
- Verwendung hochwertiger Silikatfarben
- Bodentiefe Fensterelemente mit 3-fach Wärme- und Schallschutzverglasung
- Elektrisch betriebener Sonnen- Sichtschutz
- Hochwertige Naturholzböden für die Wohnbereiche und Steinzeugfliesen für die Bäder
- Schließanlage: Einschlüsselsystem für alle Zugänge von Garage bis zur Wohnungstür im Haus
Wir bemühen uns, Ihnen von Anfang an einen Rundum-Service zu bieten, damit Sie sich bei uns gut betreut und aufgehoben fühlen. Deshalb ist es unser Anliegen, Sie Schritt für Schritt beim Erwerb Ihrer Immobilie zu begleiten und auch darüber hinaus. Ihre Zufriedenheit ist unsere Herzensangelegenheit.
Eckdaten
WohnungKaufen
Prad am Stilfserjoch
Italien
71,6 m²
Erstbezug
419.000,00 € Ja
Weitere Informationen
2023A+
Fernwärme




