Sanierungsbedürftiges Wohnhaus mit Garten im Zentrum von Mals zu verkaufen
Zum Verkauf steht ein sanierungsbedürftiges Wohnhaus im Zentrum von Mals. Es befindet sich in der Nähe von Geschäften, Bars und Restaurants. Das Wohnhaus ist an der Ostseite an ein Wirtschaftsgebäude angebaut und ist wie folgt unterteilt.
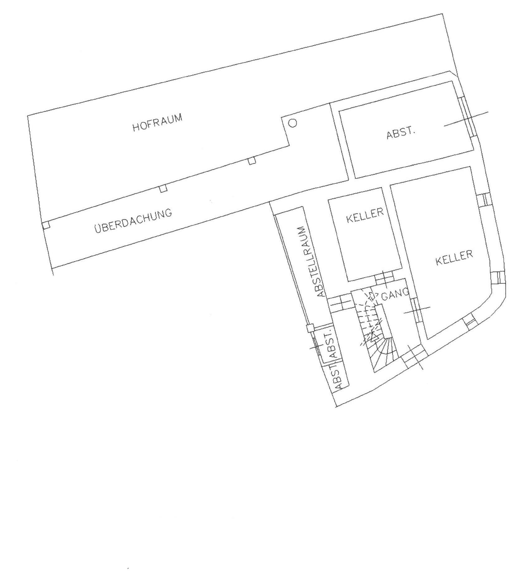
Kellergeschoss:
-Keller, Abstellräume und Garage
Erdgeschoss:
-Küche, Stube, 2 Zimmer, 2 Abstellräume, Bad und Terrasse
1. Obergeschoss:
-2 Zimmer, Abstellraum
Dachgeschoss:
-Dachboden
Weiters gehört zum Wohnhaus ein Garten hinter dem Haus.
Kellergeschoss:
-Keller, Abstellräume und Garage
Erdgeschoss:
-Küche, Stube, 2 Zimmer, 2 Abstellräume, Bad und Terrasse
1. Obergeschoss:
-2 Zimmer, Abstellraum
Dachgeschoss:
-Dachboden
Weiters gehört zum Wohnhaus ein Garten hinter dem Haus.
Eckdaten
WohnhausKaufen
Mals
Italien
334 m²
Renovierungsbedürftig
380.000,00 €
Weitere Informationen
GHolz








