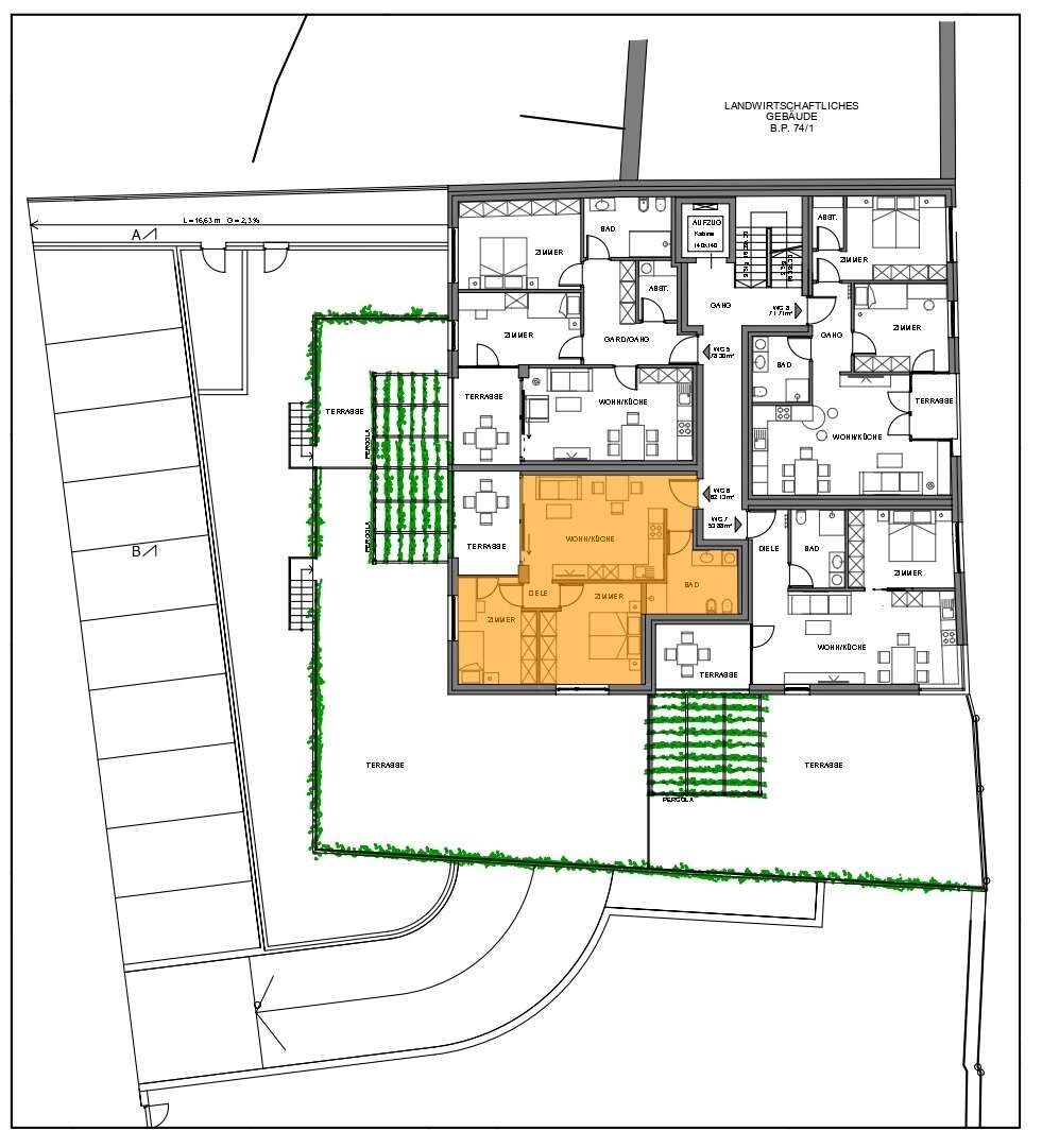
Wohnanlage Schweizerhof in Schluderns Wohnung Nr. 6
Verkauft wird eine Neubauwohnung in Schluderns, direkt angrenzend an das historische Ortszentrum. Die Wohnung befindet sich im 1. Obergeschoss eines Mehrparteienhauses.
Die Immobilie verfügt über eine helle Wohnküche, zwei großzügige Schlafzimmer, einem Badezimmer und einer Loggia.
Das Dorfzentrum, Geschäfte, Restaurants usw. sind in wenigen Schritten zu Fuß erreichbar.
Die Wohnung kann auch als Ferienimmobilie genutzt werden.
Die Immobilie verfügt über eine helle Wohnküche, zwei großzügige Schlafzimmer, einem Badezimmer und einer Loggia.
Das Dorfzentrum, Geschäfte, Restaurants usw. sind in wenigen Schritten zu Fuß erreichbar.
Die Wohnung kann auch als Ferienimmobilie genutzt werden.
Eckdaten
WohnungKaufen
Schluderns
Italien
79,34 m²
Erstbezug
385.000,00 € Ja
Weitere Informationen
32023
A+
Fernwärme



