Ferienresidenz in Schlinig mit einzigartigem Blick auf die umliegende Bergwelt zu vermieten
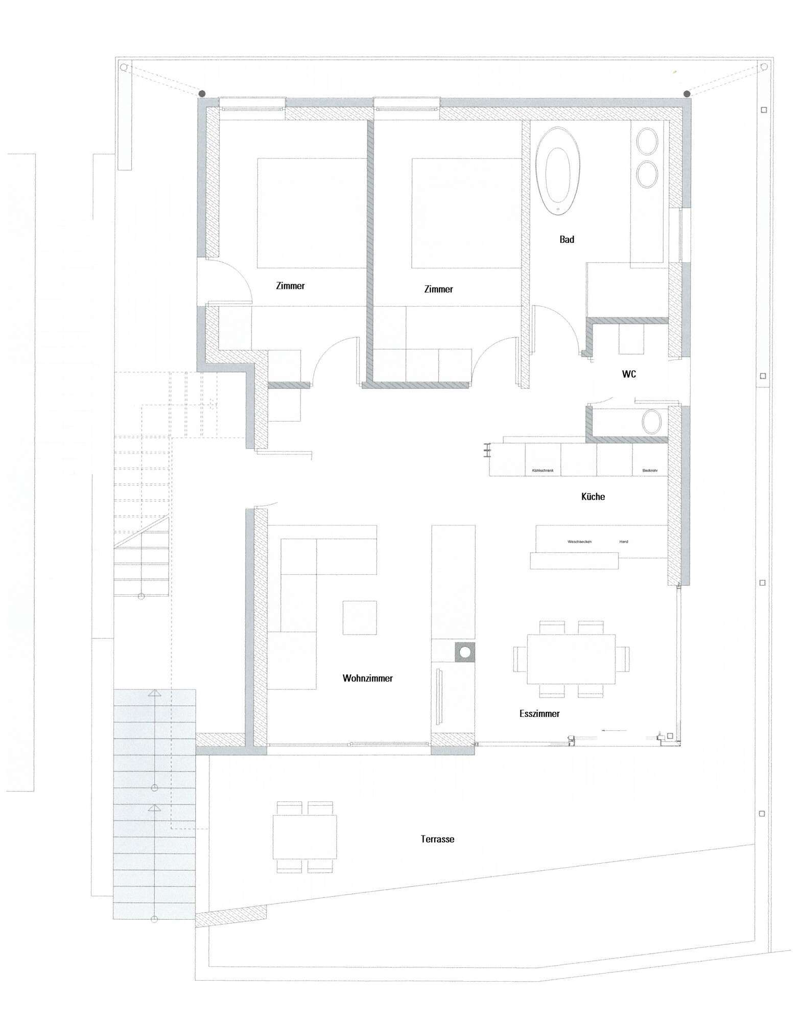
Vermietet wird eine neuwertige Wohnung mit ca. 90 m², einer eigenen Tiefgarage mit ca. 50 m², Keller und einem überdachten Autoabstellplatz.
Die Wohnung befindet sich im 1. Obergeschoss eines Wohnhauses mit nur 2 Wohneinheiten. Das Gebäude wurde 2020 erbaut und erfüllt die Richtlinien eines „Klimahaus-A-Nature“ Standards. Mit dieser Zertifizierung wird die Nachhaltigkeit des Gebäudes bewertet und erfüllt somit höchste Ansprüche. Baubiologische Bauart in Beton und Steinwollisolierung.
Alpines Design und hochwertige Materialien bieten traumhafte Blicke auf die umliegende Bergwelt.
In unmittelbarer Nähe befinden sich eine Langlaufstrecke, ein Skigebiet und zahlreiche Wanderrouten.
Die Lage ist ideal für ganzjährige Tourismusaktivitäten, ob Wandern, Skifahren, Langlaufen oder Radfahren.
- Küche
- Essbereich
- Wohnzimmer
- 2 Schlafzimmer
- Bad
- Tages WC
- großzügigen Terrasse
- eigene Tiefgarage
- Keller
Die Wohnung verfügt über eine dezentral kontrollierte Wohnraumlüftung mit Abluft im Bad und Zuluft im Wohnraum. Die Heizung erfolgt über das örtliche Fernwärmenetz. Der gesamte Wohnbereich verfügt über einer Bodenheizung und kann individuell geregelt werden.
Der Wohnraum besteht aus Küche, Essecke und Wohnzimmer. Diese Räume verfügen über eine Lehmwand mit Heu, welche für ein besonderes Raumklima sorgt. Weiters ist ein moderner Pellet-Kaminofen eingebaut, welcher über eine Fernsteuerung bedient werden kann. Eine Einbauküche mit hochwertigen Markengeräten ist ebenfalls vorhanden. Der Boden besteht aus pflegeleichten Fliesen in Holzoptik.
Die Immobilie verfügt über ein Tages-WC und ein Bad. Im Tages-WC befinden sich ein spülrandloses Klosett mit direkter Geruchabsaugung und ein Waschbecken mit Unterbau in Altholz. Erlebnisdusche mit Infrarotpanel, Regenbrause und integrierte LED-Beleuchtung mit Farbwechsel und Musik.
Zusätzlich verfügt die Wohnung über zwei große Schlafzimmer.
Auf der großen, teils überdachten Süd-Terrasse mit ca. 64 m² und unverbaubarem Panorama-Bergblick sind bereits Anschlüsse für einen Whirlpool und einer Finnischen Sauna vorhanden.
Die Wohnung befindet sich im 1. Obergeschoss eines Wohnhauses mit nur 2 Wohneinheiten. Das Gebäude wurde 2020 erbaut und erfüllt die Richtlinien eines „Klimahaus-A-Nature“ Standards. Mit dieser Zertifizierung wird die Nachhaltigkeit des Gebäudes bewertet und erfüllt somit höchste Ansprüche. Baubiologische Bauart in Beton und Steinwollisolierung.
Alpines Design und hochwertige Materialien bieten traumhafte Blicke auf die umliegende Bergwelt.
Lage
Mit seinen knapp 200 Einwohnern ist Schlinig ein kleinerer Ortsteil der Gemeinde Mals. Das Schlinigtal zieht sich von Schleis bis hoch zur Sesvennahütte und zum Schlinigpass (2.330 m), die Passroute ist ein alter Schmugglerweg in der nahen Schweiz. Heute freuen sich Wanderer und Alpinsportler über die Bergpfade zwischen Sesvenna und Watles.In unmittelbarer Nähe befinden sich eine Langlaufstrecke, ein Skigebiet und zahlreiche Wanderrouten.
Die Lage ist ideal für ganzjährige Tourismusaktivitäten, ob Wandern, Skifahren, Langlaufen oder Radfahren.
Ausstattung
Die Wohnung besteht aus:- Küche
- Essbereich
- Wohnzimmer
- 2 Schlafzimmer
- Bad
- Tages WC
- großzügigen Terrasse
- eigene Tiefgarage
- Keller
Die Wohnung verfügt über eine dezentral kontrollierte Wohnraumlüftung mit Abluft im Bad und Zuluft im Wohnraum. Die Heizung erfolgt über das örtliche Fernwärmenetz. Der gesamte Wohnbereich verfügt über einer Bodenheizung und kann individuell geregelt werden.
Der Wohnraum besteht aus Küche, Essecke und Wohnzimmer. Diese Räume verfügen über eine Lehmwand mit Heu, welche für ein besonderes Raumklima sorgt. Weiters ist ein moderner Pellet-Kaminofen eingebaut, welcher über eine Fernsteuerung bedient werden kann. Eine Einbauküche mit hochwertigen Markengeräten ist ebenfalls vorhanden. Der Boden besteht aus pflegeleichten Fliesen in Holzoptik.
Die Immobilie verfügt über ein Tages-WC und ein Bad. Im Tages-WC befinden sich ein spülrandloses Klosett mit direkter Geruchabsaugung und ein Waschbecken mit Unterbau in Altholz. Erlebnisdusche mit Infrarotpanel, Regenbrause und integrierte LED-Beleuchtung mit Farbwechsel und Musik.
Zusätzlich verfügt die Wohnung über zwei große Schlafzimmer.
Auf der großen, teils überdachten Süd-Terrasse mit ca. 64 m² und unverbaubarem Panorama-Bergblick sind bereits Anschlüsse für einen Whirlpool und einer Finnischen Sauna vorhanden.
Eckdaten
WohnungMieten
Schlinig
Italien
90 m²
Neuwertig
1.800,00 €
Weitere Informationen
32020
A+
Fernwärme












