Glurns: Geschäftslokal in der Laubengasse zu vermieten
Vermietet wird ein Geschäftslokal in Glurns. Die Liegenschaft befindet sich in der Laubengasse,
neben der Bäckerei Schuster.
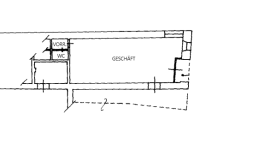
Das Geschäft liegt im Erdgeschoss und verfügt über einen Verkaufsraum, ein WC und einen kleinen Vorraum. Es hat eine Fläche von ca. 63 m².
neben der Bäckerei Schuster.
Das Geschäft liegt im Erdgeschoss und verfügt über einen Verkaufsraum, ein WC und einen kleinen Vorraum. Es hat eine Fläche von ca. 63 m².
Eckdaten
EinzelhandelMieten
Glurns
Italien
500,00 €






