Laas: Tischlereibetrieb im Gewerbegebiet zu vermieten
Vermietet wird eine Tischlerei im Gewerbegebiet von Laas.
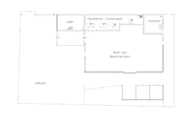
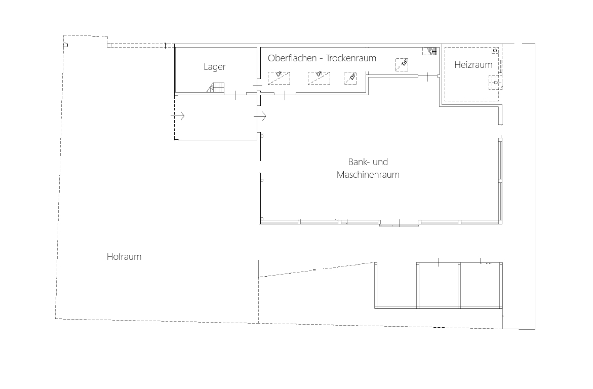
Die Halle ist wie folgt eingeteilt:
- Lagerfläche ca. 60 m²
- Lackiererei ca. 56 m²
- Halle ca. 300 m²
Die Raumhöhe beträgt 3 Meter.
Weiters verfügt die Immobilie über mehrere Autoabstellplätze und Lagerflächen im Freien mit ca. 500 m².
Derzeit wird die Halle als Tischlerei genutzt. Die Maschinen und Einrichtung könnten mit übernommen werden.
Die Beheizung der Halle erfolgt mittels Holz. Zudem ist die Immobilie an das örtliche Fernheizwerk angeschlossen.
Die Halle ist wie folgt eingeteilt:
- Lagerfläche ca. 60 m²
- Lackiererei ca. 56 m²
- Halle ca. 300 m²
Die Raumhöhe beträgt 3 Meter.
Weiters verfügt die Immobilie über mehrere Autoabstellplätze und Lagerflächen im Freien mit ca. 500 m².
Derzeit wird die Halle als Tischlerei genutzt. Die Maschinen und Einrichtung könnten mit übernommen werden.
Die Beheizung der Halle erfolgt mittels Holz. Zudem ist die Immobilie an das örtliche Fernheizwerk angeschlossen.
Eckdaten
LagerMieten
Laas
Italien
324 m²
2.500,00 €
Weitere Informationen
1992Fernwärme









